Residential Projects
For Residential Projects, we can build you a conceptual estimate for a quick look at how much as project may cost; we can also create a full detailed material take-off for your project; we can also even bid out your project. We maintain 100% confidentiality, but that also means we do not supply any subcontractor names. We can price out projects with as many options as desired. Contact us for more details.
Sample Estimates
Unit costs have been cleared from these estimates
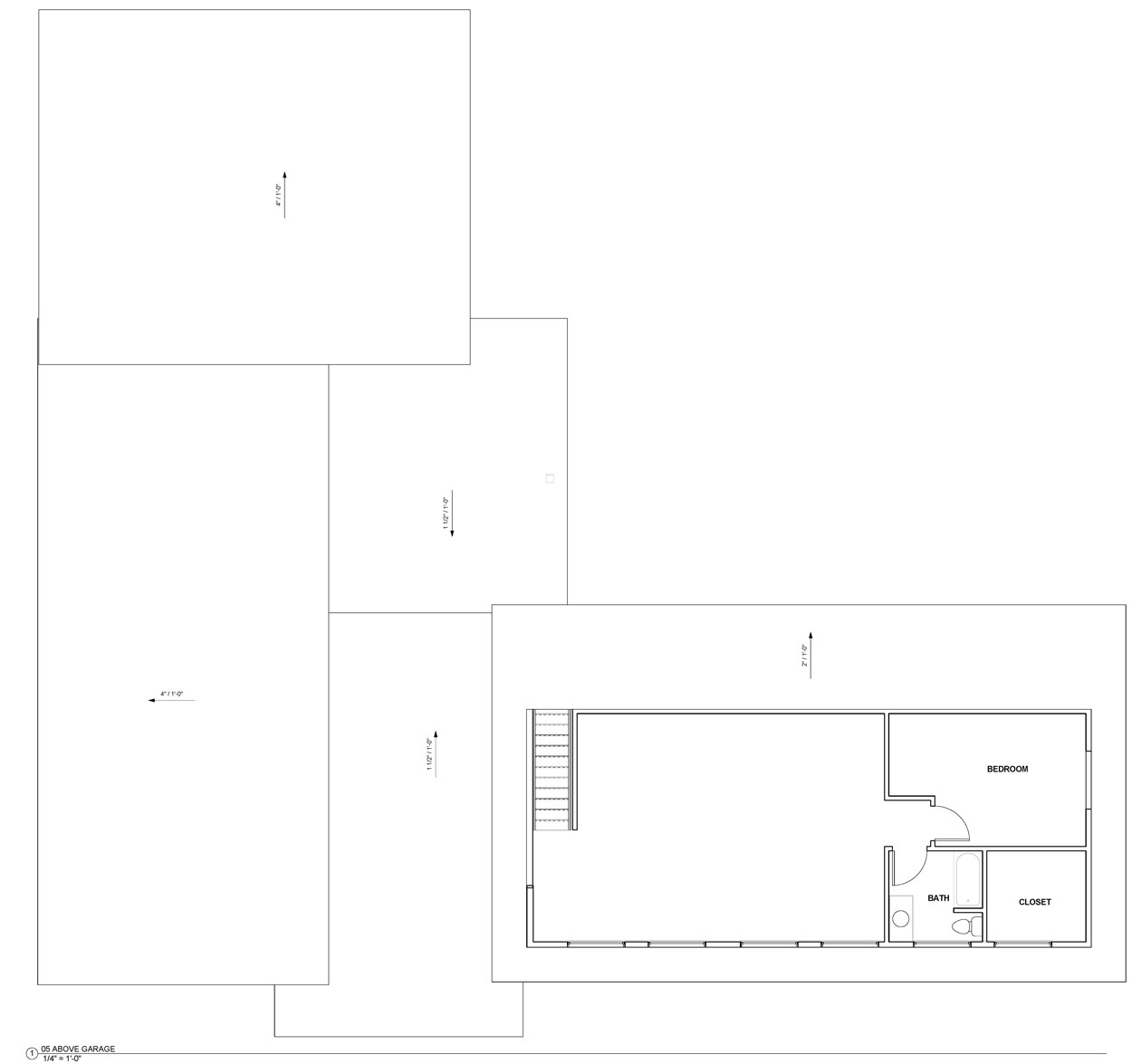
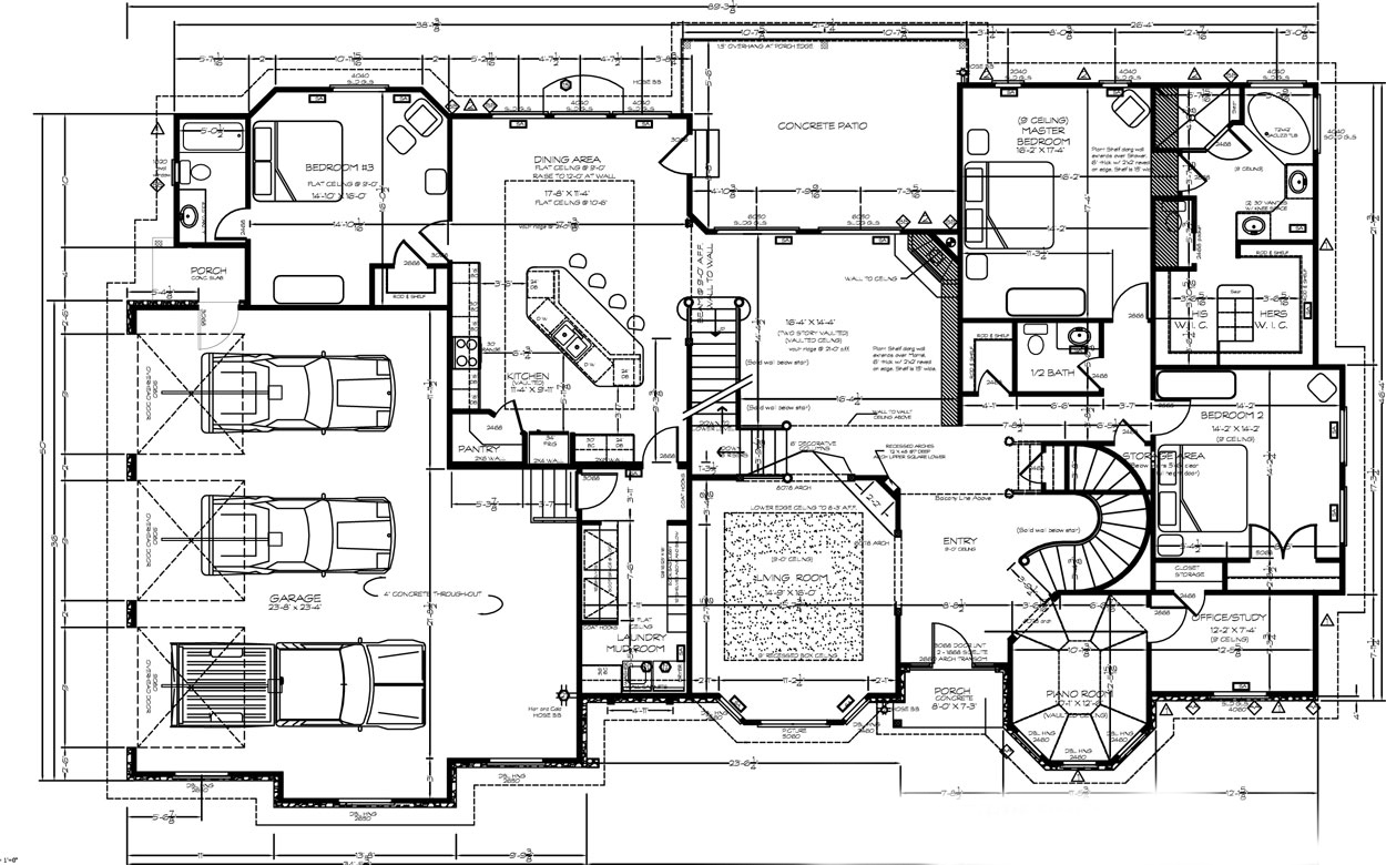
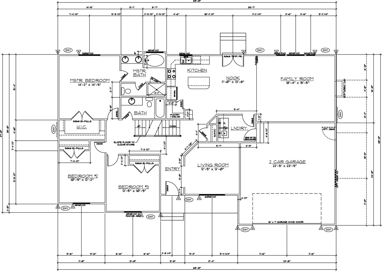
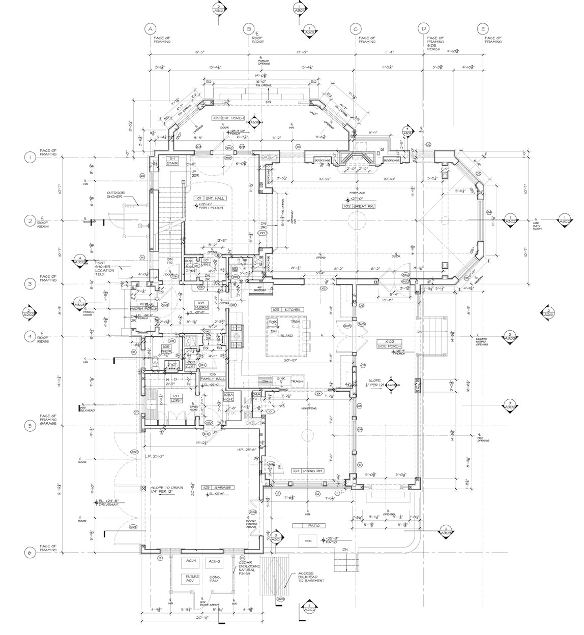
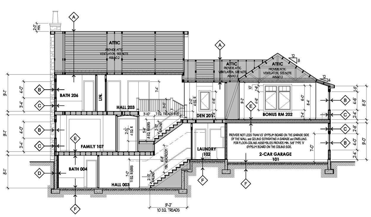
Some of Our Completed Projects...
High-End Cabin, Utah. CD Review - Estimated Project Value ~ $4 Million
Custom Residence, California. CD Review - Estimated Project Value ~ $3.5 Million
Contemporary Residence, Utah. Full Review - Estimated Project Value ~ $4 Million
High-End Cabin, Utah. CD Review - Estimated Project Value ~ $3 Million
High-End Cabin, Utah. CD Review - Estimated Project Value ~ $11 Million
Custom Residence, Utah. CD Review - Estimated Project Value ~ $450K
Custom Residence, Utah. CD Review - Estimated Project Value ~ $450K
Custom Cabin, Utah. CD Review - Estimated Project Value ~ $800K
High-End Cabin, Utah. CD Review - Estimated Project Value ~ $4.5 Million
Addition and Remodel, Utah. CD Review - Estimated Project Value ~ $600K
Various Semi-Custom Homes, Utah. CD Review - Estimated Project Values ~ $200-450K
Residence Addition and Remodel, Utah. CD Review - Estimated Project Value ~ $350K
Custom Residence, Utah. CD Review - Estimated Project Value ~ $450K