Commercial Projects
We can build you an accurate cost estimate for your project based on as little as a paragraph description. Our estimates are designed as a guide for your project and we give discounts for using our services multiple times during the design process. Regardless, we treat each estimate independently and each iteration is treated as a whole new job. At any stage we can give as many alternates as requested and work with you on V.E. suggestions and associated cost savings. Contact us for more details.
Sample Estimates
Unit costs have been cleared from these estimates
Some of Our Completed Projects...
Lyman School District Admininistration Building - Lyman, WY
Full Design Review. Estimated Project Value ~ $2 Million
Provo High Sports Complex With Track and Field as Alternate - Provo, UT
Feasibility Study. Estimated Base Project Value ~ $1.6 Million
Episcopal Diocesan Center - Salt Lake City, UT
Full Design Review. Estimated Cost of Construction with Site ~ $13 Million
Laramie High School - Laramie, WY
35% review of Design Documents. Estimated projected Value ~$55 Million Base and $21 Million in Alternates.
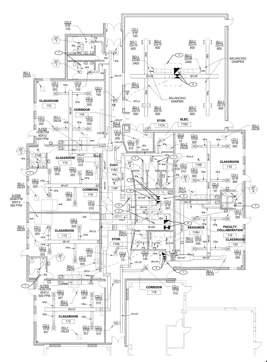
Knapp and Newlon Elementary Upgrades, Denver Public Schools - Denver, CO
Full Design Review. Included Mechanical and Electrical Upgrades with other Minor Architectural Changes. Estimated Cost of Upgrades with Options ~ $400K
Escalante-Biggs Academy, Denver Public Schools - Denver, CO
Design Review, SD and CD Drawings. Estimated Cost of Construction with Site ~ $2.3 Million
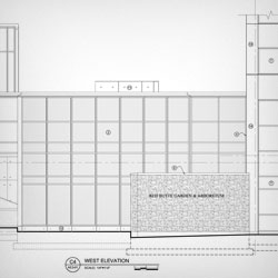
University of Utah - Red Butte Gardens Connector - Salt Lake City, UT
Reviewed DD and CD. Estimated Project Value ~ $550K
BMW Dealership - Pleasant Grove, UT
Design Review CD Drawings. Estimated Cost of Construction with Site ~ $7 Million
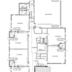
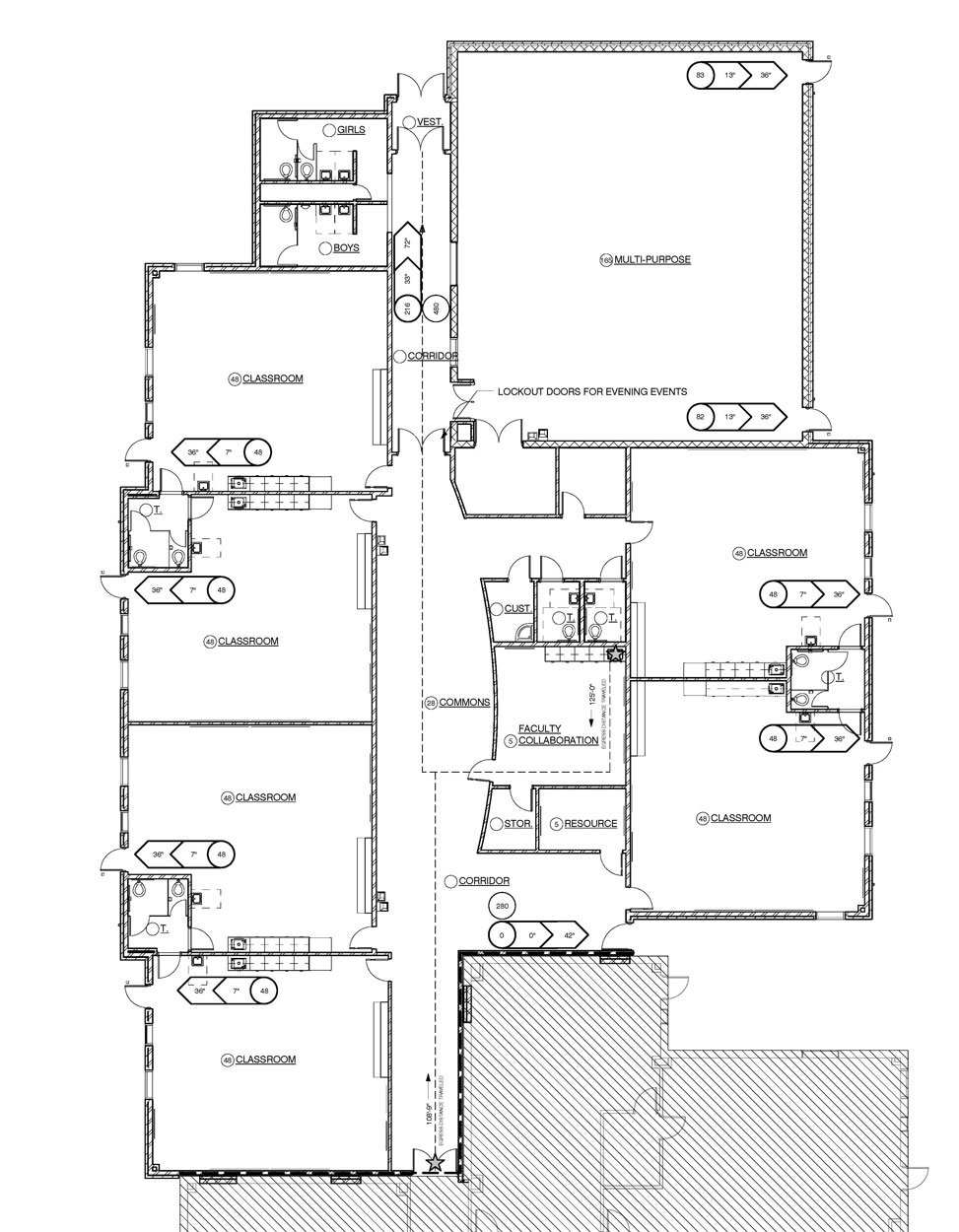
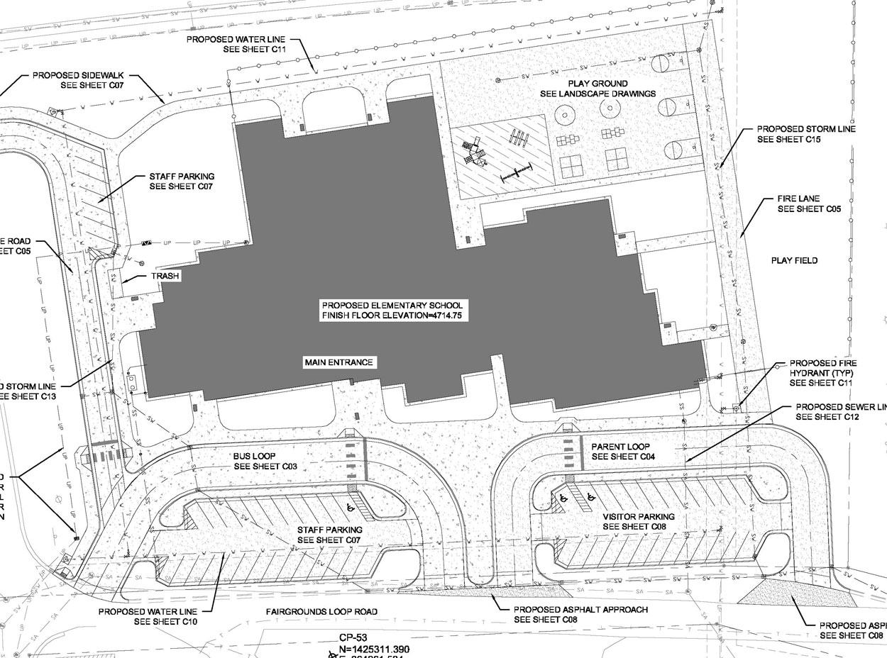
Sundance Elementary - Sundance, WY
Elementary School and Site ~ $14 Million - Provided Design Reviews Through 60% Complete Drawings
